Projects
Services
Contact
→
Home
→
Projects
→
Contact
Social:
LinkedIn
Instagram
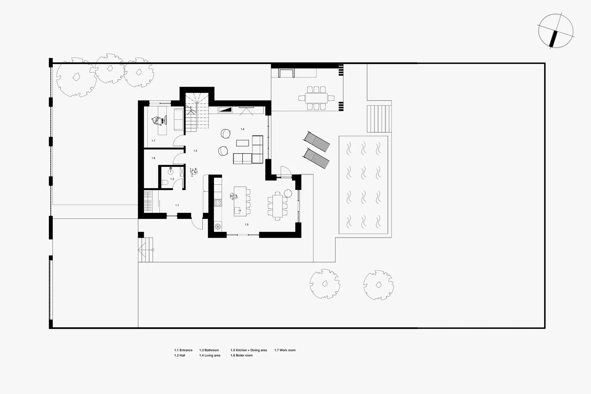
MODERN HOUSE
Year
2017
Location
Novooleksandrivka, Dnipropetrovsk region, Ukraine
Area
190 m
2
/ 2045 ft
2
Get in touch
Let’s create the space you imagine
↳
Contact