Projects
Services
Contact
→
Home
→
Projects
→
Contact
Social:
LinkedIn
Instagram
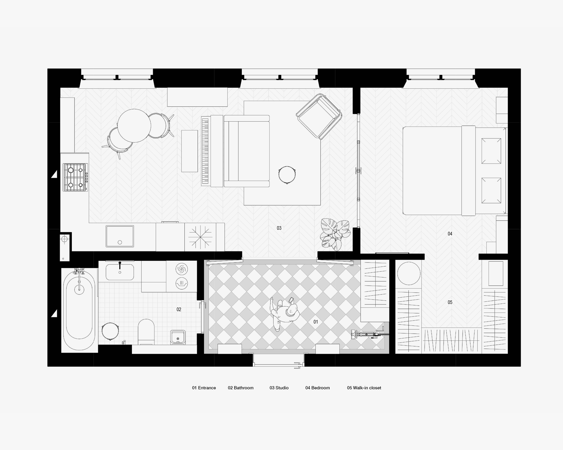
Kinoproby / Screen Tests
Year
2025
Location
Kyiv, Ukraine
Area
40 m
2
/ 828 ft
2
Get in touch
Let’s create the space you imagine
↳
Contact